Die Enter-Taste
Ein Architekturführer für Ingolstadt
Sanierung / Neubau - Neugasse / Griesbadgasse
Beschreibung des Bauvorhabens
WOHNBEBAUUNG GRIESBADGASSE I NEUGASSE in Ingolstadt
Umbau und Sanierung eines denkmalgeschützten Hauses
Neubau von vier Wohnhäusern (Niedrigenergiehäuser)
Wettbewerb 2005, 1. Preis
Preise:
-Deutscher Bauherrenpreis 2009/2010 Neubau „Hohe Qualität –
Tragbare Kosten“ 2009
-Bayerischer Bauherrenpreis Stadterneuerung 2009, Energieeffiziente
Erneuerung, Besondere Anerkennung 2009
-Europahouse Award 2009
Realisierung: 2007/08
Bauherr: GWG Ingostadt GmbH
Leistungsphasen: 1 bis 7, 8 (künstlerische Oberleitung)
Baukosten Kostengruppe 300 + 400 brutto: 1.555.000 €
Bruttorauminhalt BRI: 4.839 m3 (321 €/m3 BRI)
Bruttogeschossfläche BGF: 1.770 m2 (878 €/m2 BGF)
Wohnfläche WF: 895 m2 (1.737 €/m2 WF)
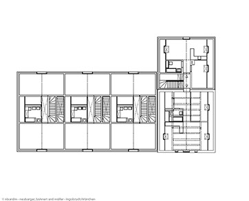
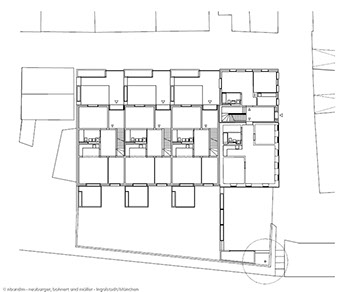
Das Projekt ging aus einem gewonnenen Wettbewerb hervor. Aufgabe war es, ein denkmalgeschütztes innerstädtisches Bauernhaus aus dem Jahre 1856 zu sanieren und das Areal des ehemaligen Stadtbauernhofes mit weiteren Wohnbauten zu ergänzen. Insgesamt sollten 12 neue Wohnungen entstehen.
Städtebauliche Einbindung
Das Grundstück liegt im Ensembleschutz der Ingolstädter Altstadt, deren Struktur und Formenkanon zu Kontext und Vorbild der neuen Bebauung wurden. An städtebaulich prominenter Stelle entlang der ehemaligen Stadtbefestigung entsteht ein gleichsam dominantes wie integratives Ensemble aus vier neuen Wohnhäusern, die den denkmalgeschützten Bestand einbinden. Die aneinander gereihten Giebelhäuser wirken identitätsstiftend, den Bewohnern soll das Gefühl vom „eigenen Haus“ vermittelt werden. Der Rücksprung der Gebäudeflucht zur Neugasse im Norden ermöglicht die Einrichtung von privaten Höfen, während sich die Freifläche im Süden in Mietergärten gliedert, die den erdgeschoßigen Wohnungen vorgelagert sind. Das Motiv vorgelagerter Höfe und Gärten ist der „Schleifmühle“ entlehnt, der ältesten erhaltenen Wohnzeile der Ingolstädter Altstadt, die in unmittelbarer Nähe liegt.
Konstruktive Leitdetails
Die Neubauten nehmen in ihrer Gestaltung und Materialität Bezug auf die Umgebung. Putzfaschen gliedern die Lochfassade des Denkmals. Der Anbau nimmt den Rhythmus der Altbaufassade auf. Die neue Fassade wird ebenfalls durch Faschen und Putzstrukturen unterschiedlicher Körnung gegliedert. Historische Elemente wie Gesimse und Gauben werden adaptiert. Die Fensterformate, deren Größe den heutigen Bedürfnissen angepasst wurde, vermitteln bereits zur Fassade der drei anschließenden Neubauten, welche schließlich auf Faschen und Gesimse komplett verzichten. Bei allen Gebäuden kamen ausschließlich Fenster- und Türelemente aus Lärchenholz zum Einsatz.
Die Gestaltung orientiert sich an historischer Bausubstanz und spricht dennoch eine moderne und zeitgenössische Sprache, die die architektonischen Grundelemente wie Innenräume und Fenster den heutigen Anforderungen in puncto Flexibilität und Helligkeit anpasst, deren historische Referenz jedoch klar erkennbar bleibt.
Durch die Aufteilung des Programms auf fünf Häuser entsteht ein neuer Typus, der eine Mischung aus Geschosswohnungsbau und Reihenhaus darstellt und die richtige Antwort auf die Struktur der mittelalterlichen Altstadt Ingolstadts findet. So entstanden vier Hauseingänge bzw. Adressen mit jeweils zugeordneten Freiflächen.
Zeitgemäße Architektur für Wohnbauten
Das Projekt ist neben einem weiteren Neubau und der Sanierung des unmittelbar angrenzenden „Storchenwirtes“ programmatisch für die Planungspolitik des Stadtplanungsamtes Ingolstadt – erklärtes Ziel ist die Aufwertung innerstädtischer Randgebiete. So ist die Maßnahme Bestandteil des vom Stadtplanungsamt initiierten „Leerstandsmanagements”.
Die Grundrissorganisation ist auf die Richtlinien zur Wohnungsbauförderung abgestimmt, die Größen somit minimiert, das Projekt wurde jedoch auf Grund der guten Nachfrage später frei finanziert ausgeführt. Die Erdgeschosswohnungen sind barrierefrei ausgeführt.
Mieterwünsche wurden bereits in der Rohbauphase berücksichtigt.
Soziale und gesellschaftliche Belange stellen wichtige Aspekte zur Nachhaltigkeit des Projektes dar. Die Wohnform fördert nachbarschaftliche Kontakte, Studenten WG`s und Rentner wohnen Tür an Tür. Zwei vormalige Bewohner des denkmalgeschützen Hauses konnten als Mieter für die Neubauten gewonnen werden. Die gute Akzeptanz seitens der Mieter ist ein Beitrag, Menschen jeden Alters die Vorteile von innerstädtischem Wohnen wieder schmackhaft zu machen und gerade in kleineren Städten die Zersiedelung durch Neubaugebiete mit Einfamilienhäusern einzudämmen.
Bürophilosophie
Ableitung
Jeder Ort hat seine bauliche, soziale und kulturelle Geschichte. Ob diese nun in Form von Überlieferungen, Aufzeichnungen und erhaltenem Bestand sichtbar ist oder nicht, spielt keine Rolle: beim Betrachten des näheren und weiteren Umgriffs, unter Anwendung baulicher Empathie sowie dem Erkennen lokaler Spezifika wird evident, was vorhanden, vorgegeben und wie weiter zu verfahren ist. Ableitung erfolgt unter historischen, räumlichen und thematischen Gesichtspunkten. Assimilation
Dabei gehen wir aus von dem Gedanken, dass die Beziehungen, in denen ein Objekt steht, ebenso wichtig sind wie das Objekt selbst. Seine Planung gerät, im Zusammenspiel mit der späteren Nutzung, zu einer reflektiven Selbstbedienung an seiner zeitlichen und räumlichen Verortung. Seine bauliche Umsetzung bildet gemeinsam mit der Umgebung eine neue heterogene Einheit und verzichtet bewusst auf den vordergründigen Kontrast. Assimilation bedeutet bauliches und soziokulturelles Einfügen. Ableitung und Assimilation ergeben Architektur.
Architektur
Die weltweite Angleichung unserer Städte durch den vorschnellen Abriss gewachsener Bausubstanz und den unkritischen Import beliebiger Einheitsarchitekturen lehnen wir ebenso ab wie die Konservierung historischer Altstädte zu sakrosankten Freilichtmuseen. Stadt muss aus dem Geist eines reflektierten Regionalismus weitergebaut, das einzelne Haus aus seinem Kontext heraus entwickelt werden. Unsere Gebäude sind eigenständige, zeitgenössische Architekturen und zugleich Interpretationen vorhandener Typologien, überlieferter Traditionen und vorgefundener baulicher Elemente. Sie sind Glieder in einer evolutionären Kette, die die Geschichte eines Ortes weiterschreiben und globalen Tendenzen entgegentreten, die gegenwärtig den Erdball überrollen und Heimat zerstören.
„Unsere Zeit ist die ganze uns bekannte historische Zeit. Dieser Gedanke allein kann die Grundlage moderner Baukunst sein. Zweck, Funktion, Preis und all die Notwendigkeiten sind nicht mehr als das verwendete Material, Bedingungen, die aber, auch wenn sie noch so gut verwendet und erfüllt worden sind, mit Architektur nichts zu tun haben, Rohstoffe in der Hand des Künstlers, der sie formt. Aber der Geist ist alles.“ (Josef Frank, 1931)
© nbundm - neuburger, bohnert und müller - Ingolstadt/München
Planung durch:
nbundm*
*neuburger, bohnert und müller
Architekten BDA und Stadtplaner
Eduard-Schmid-Strasse 2
81541 München
Bauherr:
Gemeinnützige Wohnungsbau-gesellschaft Ingolstadt GmbH - Ingolstadt
Internetseite Bauherr
Eigentümer:
Bürgerstiftung Ingolstadt
Rathausplatz 2
85049 Ingolstadt
Internetseite Bürgerstiftung
Waisenhausstiftung Ingolstadt
Herschelstraße 20
85057 Ingolstadt
Internetseite Waisenhausstiftung
Fotos von:
Florian Schreiber
Eriakstraße 3
80939 München
Internetseite
Photograph
<
12 - 19
>
Copyright 2018 - Alexander Bendzko - All rights reserved