Die Enter-Taste
Ein Architekturführer für Ingolstadt
Schwinge
Beschreibung des Bauvorhabens
Städtebau der Schwinge
Die Schwinge bietet im Quartier an der Regensburger Straße Wohnraum für 38 Familien bzw. Alleinerziehende. Die Nähe zur Innenstadt sowie die unmittelbar südlich angrenzenden Donauauen zeichnen das Projekt aus. Die klare, straßenbegleitende Gebäudegeometrie mit 160 m Länge – davon 120 m in der Kurve bildet einen markanten, städtischen Abschluss des Viertels und ist gleichzeitig ein geschlossener, „gebauter“ Schallschutz mit höchster Wohnqualität und Ruhe im verkehrsfreien Innenhof.
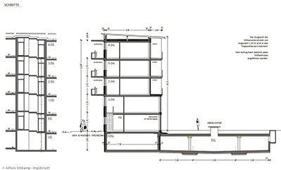
Erschließungskonzept
Die drei Treppenhäuser gleichen den Geländeversatz von 1,20m aus und erschließen das Gebäude wirtschaftlich und barrierefrei. Unter dem Kopf der Schwinge ist außerdem ein Fahrradweg parallel zur Donau in Richtung Stadtmitte angeschlossen.
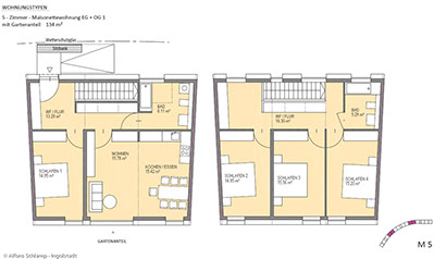
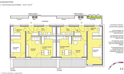
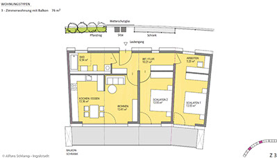
Wohnungstypen
Es wurden zwei grundsätzliche Wohnungsmodelle entwickelt, die den Anforderungen entsprechend kombiniert wurden:

Alle Aufenthaltsräume sind dabei zum ruhigen, grünen Innenhof orientiert und von „laut nach leise“ zoniert. Jede Wohnung hat einen sehr großzügigen Freibereich (Garten oder Loggia). Alle Wohnungen sind barrierefrei nach 18040 Teil 2, wobei 30% der Wohnungen behindertengerecht nach Teil 1 ausgeführt sind. Die Schlafräume sind mit mind. 15m² über dem Standard im sozialen Wohnungsbau und somit flexibel belegbar. Zusätzliche Arbeits- und Spielbereiche in den Puffer-Flurzonen bieten zusätzliche Aufenthaltsmöglichkeiten.

Wohnungsgemenge
Die Schwinge setzt sich aus folgenden Wohnungen zusammen:
+ 5 Zimmer Maissonette für max. 8 Personen 4 WE
+ 4 Zimmer Maissonette für max. 6 Personen 7 WE
+ 4 Zimmer Geschoßwohnung für max. 6 Personen 3 WE
+ 3 Zimmer Geschoßwohnung für max. 4 Personen 2 WE
+ 2 Zimmer Geschoßwohnung für max. 2 Personen 5 WE
+ 2,5 Zimmer Geschoßwohnung für max. 3 Personen 2 WE
+ 3 Zimmer Geschoßwohnung für max. 4 Personen 10 WE
+ 2 Zimmer Geschoßwohnung für max. 2 Personen 2 WE
Fassadenkonzept Straße
Runde Laubengang-Stahlbetonfertigteile bilden die Kurve und beschreiben die runde straßenbegleitende Laubengangvorderkante. Die geschlossene VHF-Fassade folgt dem Kreis als Vieleck, wobei jeder Abschnitt von drei Achsen eine Schuppe mit integrierter Beleuchtung ausbildet. Fenster- und Türöffnungen durchstoßen und zonieren die Fassadenebene.
Fassadenkonzept Innenhof
Über die Loggien der Geschosswohnungen öffnet sich die Südfassade zum Hof. Der 1,7 m tiefe Rücksprung ist ausgebildet als großflächiger Freibereich und bildet in der Kurve quasi eine Arena zum Innenhof. Die Balkone sind dabei durch Außenschränke voneinander getrennt. Das Sockel- / Maisonettegeschoss mit direktem Gartenzugang ist verputzt – Schiebeläden im EG bieten Sichtschutz und Privatsphäre.
Kopfbau
Die Schwinge beginnt mit dem Kopfbau im Südwesten und bezieht einen klaren, selbstbewussten, dem Ort angemessenen Standpunkt.
Der Überhang ist das Tor zum grünen Innenhof und macht die rückgebaute Gerhard-Hauptmann-Str. privater, die Wohnanlage ruhiger.
Die Südbalkone bieten eine einzigartige Aussichtsplattform in Richtung Donau und Altstadt.
Text: © Alfons Schlamp - Ingolstadt
Planung durch:
Architekturbüro Alfons Schlamp
Schlüterstraße 47
85057 Ingolstadt
Bauherr:
Gemeinnützige Wohnungsbau-gesellschaft Ingolstadt GmbH - Ingolstadt
Internetseite Bauherr
Fotos von:
Florian Schreiber
Eriakstraße 3
80939 München
Photograph
<
12 - 16
>
Copyright 2018 - Alexander Bendzko - All rights reserved